Refurbishment of Amtshaus III

competition, Zurich, 2022

The Amtshaus III is part of the listed municipal administration buildings. It was built in 1912-1914 by Gustav Gull as part of a large urban planning vision in the centre of Zurich. Through a public competition, proposals for the restoration of the attic of the Amthaus III were to be submitted.

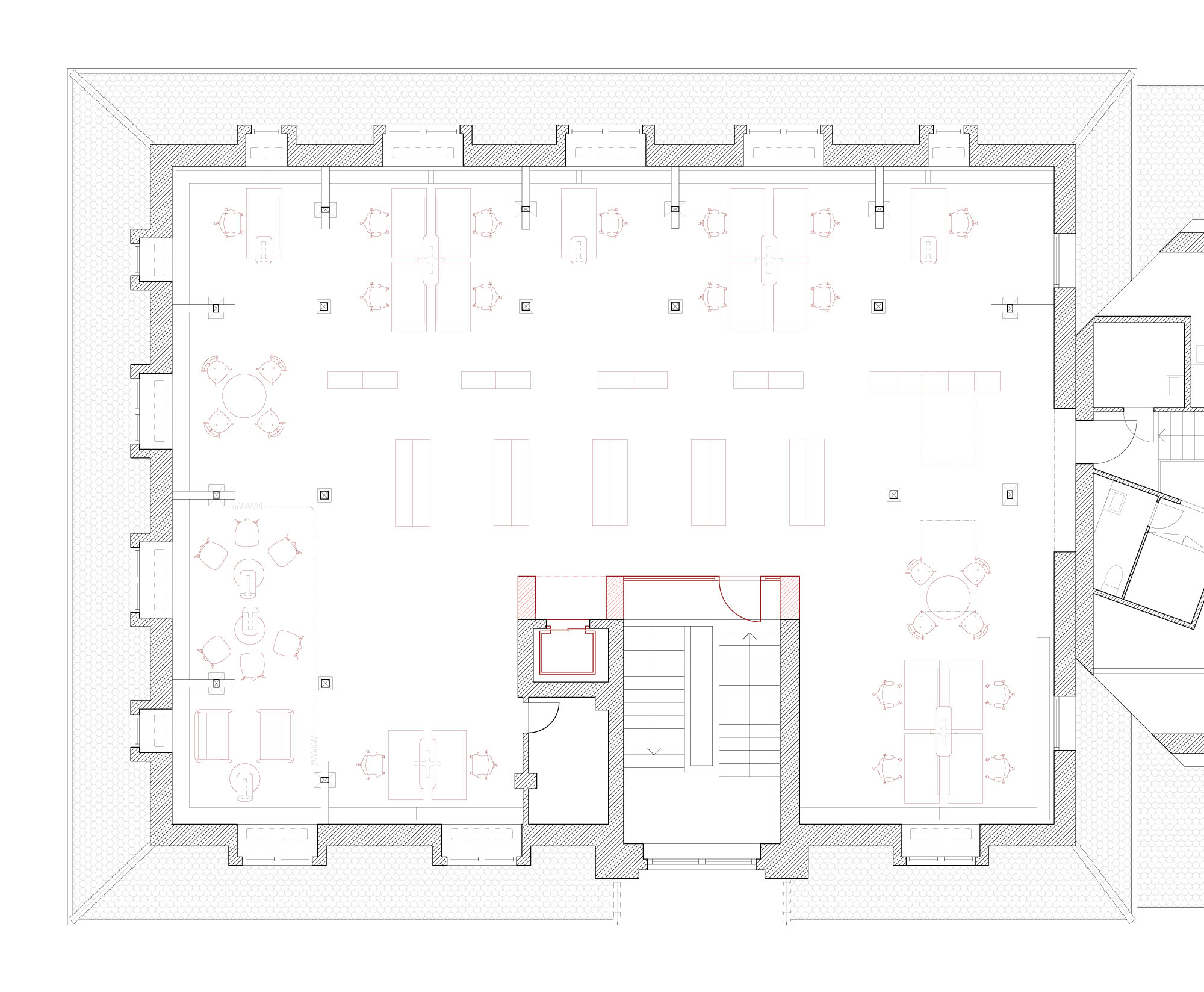
In 1998-2003, the original attic space of Amthaus III was separated into two separate floors and the lower attic was further subdivided into small office compartments. The project takes a liberating approach by removing the redundant attic space and all existing lightweight walls. This 'freeing up' results in an elevated attic space with a contiguous floor area on one level.

The multi-story, reclining roof truss becomes the defining architectural component of the new attic space. In its original state, the roof structure was already self-supporting. Therefore, the proposed exposure of the roof structure will have little impact on the existing structural support. Similar to the lower floors, new glazing to the stairwell will allow daylight into the depths of the space and establish new views out to the exterior.

By removing the existing walls, the workstations can then be flexibly arranged. In case of future transformations, alternative uses can be adapted with little effort.